往复式压缩机活塞杆下沉量分析
一、机组概述
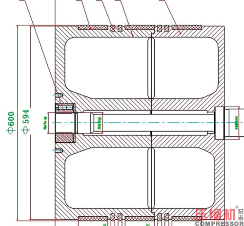
【买空压机网】某公司K-302AB往复式压缩机是60万吨/年柴油加氢装置PSA解析气压缩机设备。属于四列二级压缩,型号为4M20-198/0.1-6.5型,水冷式、M型气体压缩机。本机为少油润滑设计,每列气缸都设置了活塞杆下沉监测报警装置。其整体结构简图可参看下图。

主要技术规范:




二、活塞杆下沉监测装置基本原理
本机活塞杆下沉监测装置是某品牌的电涡流位移传感器,它是一种非接触式的电磁探头,通过监测探头与活塞杆监测面的位移变化,监测出活塞杆的下沉量。电涡流位移变送器是采用电涡流探头+延长电缆+前置变送器组成,输出标准的4-20mA信号,防爆等级为iaIICT4,前置变送器放置在现场防爆接线箱内,接线箱放置在压缩机附近,再从接线箱接线至DCS,用来显示和报警。本机四列缸在每个填料函安装法兰盘上面安装了1个电涡流位移传感器用于监测各级活塞杆的下沉量,如左图所示。

支承环磨损后会引起活塞杆会产生下沉,这会导致传感器探头与活塞杆之间的间隙发生变化。当检测探头顶部的线圈加上高频电流与导电表面靠近时,由于线圈磁力线的作用,使导电物体表面产生涡流,从而使线圈的电感量减小。线圈特性的这个变化被转换成直流电压信号输出,通过传感器测定的活塞杆下沉量可以计算出支承环的磨损量,活塞杆下沉量与支承环的磨损量成正比例关系。
三、故障发生过程
2024年1月15日K-302A出现一级一列活塞下沉量报警,达到0.65mm。现场切机后停电。拆开中间接筒侧盖后检查,从填料函端盖可以看出,填料磨损严重,证明活塞支撑环已经磨损严重。活塞下沉,气缸中磨损的粉末也将导致填料磨损加剧恶化。拆检后发现,活塞支撑环活塞环已磨损,活塞和气缸已轻微拉缸。阀窝气道里发现大量不锈钢滤网碎片。进一步检查压缩机入口滤网,滤网只剩固定架筒,滤网已抽扁带走进入气缸。最终导致支撑环活塞环异常磨损,触发报警。根据现场状况,又检查了一级二列,虽然没有报警,但活塞支撑环也已经磨损,同样气缸内、阀窝里都有破损的滤网碎片。


根据这次突发故障,显示压缩机活塞下沉量监测没有及时报警,运行时位移值有波动,但没有超过报警值,没有引起重视。当触发报警时,已经损坏严重了。基于此,对本机的活塞下沉量监测做进一步分析。
本机一级和二级活塞杆下沉量报警值设定为:

四、活塞杆下沉量的计算
计算之前需要压缩机机组的一些特定的参数,包括压缩机的行程、活塞及活塞杆的长度、连杆中心距、传感器的监测位置等。根据随机资料,简图如下:

计算活塞支撑环磨损的物理模型及方法(见下图),在行业中广泛应用,是一种简单普遍的计算评测方式。
设定:
L1—传感器的监测中心与十字头中心的距离
L2—传感器的监测中心与活塞中心的距离
A为活塞支撑环实际磨损量
B为电涡流传感器测量的沉降值
首先测量十字头和支撑环(活塞中心)到传感器的长度L1、L2,通过电涡流传感器测量活塞杆下沉数值B,通过相似三角形原理,计算公式如下:

计算得到支撑环实际磨损量


根据简图和计算模型:

五、检查分析
本机活塞图纸如下:

由图可看出,活塞支撑环磨损极限值3mm,基本属于拉缸状态。
结合本次磨损和报警设置,报警设置有偏差。使用过程中的注意事项应考虑:
在进行活塞杆下沉报警值和联锁停机值的设置时,要注意考虑一定的误差范围。因为在监测过程中,主要有2个方面可能会影响监测精度,造成监测误差:
①活塞杆在压缩机往复运动中可能产生的轻微弯曲;
②由于十字头与十字头滑道中存在间隙,所以在往复运动中,十字头会有微小幅度的上下运动。
活塞杆的材质和表面涂层对电涡流传感器的工作特性曲线有非常大的影响。本机活塞杆喷涂陶瓷涂层,所以在使用传感器进行压缩机运行情况监测时,首先一定要对传感器的曲线进行标定。当压缩机机组运行一段时间后,活塞在气缸中的位置会因热膨胀而有些许的变化。因此当压缩机机组在现场进行额定工况负载运行4小时以上后,应重新对监测位置进行归零调整。
本机组安装说明里有关:
⑴安装气缸组件,通过气缸支撑底板上的调整螺钉,可调整气缸的水平。
⑵应使气缸做水平或径向位移,或刮研接筒与气缸止口处连接平面进行调整,不得采用加偏垫或施加外力的办法来强制调整,压缩机安装时应以活塞杆冷态下水平、垂直径向跳动允许值做为验收依据。
⑶水平找正时,应在气缸镜面上用水平仪进行测量,其水平度偏差不得超过0.05mm/m,其倾斜方向应与十字头滑道倾斜方向一致。
所以仪表专业在安装调校传感器时应联合动设备,消除一些因素的干扰。诸如十字头滑履间隙,滑履在过止点后向上还是向下的受力。活塞杆在垂直方向冷态跳动值最大时活塞杆的运动位置会受气缸水平度影响。
至今,国内大多数大型往复压缩机活塞杆上部或下部加装了电涡流传感器,来监测数据变化,已有很多专家学者对机组故障特征提取做了大量的研究工作,并在实践中得到广泛应用。美国石油协会在2007年颁发的API618[1]标准6.3.1和C.3.3中明确提到“卧式往复压缩机活塞杆水平和垂直冷态径向跳动偏差范围在行程的±0.015%之内”“盘车试验刻度盘指示器活塞杆水平(侧向)径向跳动不应超过0.064mm,不考虑行程长度”“考虑到可能造成轻微平行偏移或角偏差的所有零件的几何和配合公差,加上或减去行程许用限值的±0.015%”。同时,该标准中图C-4对活塞杆重力产生的挠度在千分表处的几何变形进行了专利计算;标准中C.4.5还提到“在正确对中条件下并无活塞杆下沉,垂直活塞杆径向跳动非常接近一个成比例的直角三角形关系”,其公式如下:

该模型公式未考虑十字头滑履磨损,因此与实际情况存在一定偏差。无论是美国API规定,还是国家标准、行业标准,在实际应用过程中,总有些偏差。安装精度、制造精度、测量偏差、信号传输精度,最终都将导致偏差的产生,这将促使我们须结合自身机组和每次检修,统计作出最接近实际情况的计算模型,以便设置最适宜的报警参数。
参考文献
[1]API618-石油、化学和气体工业设施用往复压缩机.美国石油学会,2007.
[2]郁永章.容积式压缩机技术手册[M].北京:机械工业出版社,2005.
以上为正文!
买空压机网部分新闻素材来源于各大品牌公众号和压缩机网(www.compressor.cn).
压缩机网作为行业内最早的平台型网站.一直为空压机行业的发展而努力.
在此致以敬意. 希望有机会能一起合作.为用户提供最优质的行业资讯.